
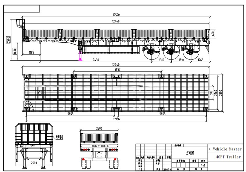
La conception structurelle d'une semi-remorque à ridelles est relativement simple, composée principalement de l'avant du véhicule, de la remorque et des ridelles. L'avant du véhicule est généralement un tracteur, responsable de fournir la puissance et la traction. La partie remorque est la zone principale de chargement des marchandises, généralement fabriquée en acier ou en alliage d'aluminium pour garantir sa résistance et sa durabilité. La conception des ridelles facilite le chargement et le déchargement des marchandises, et est particulièrement adaptée au transport de marchandises de grande taille ou de forme irrégulière. La hauteur des ridelles est généralement d'environ un mètre, ce qui permet d'empêcher efficacement le glissement des marchandises pendant le transport et facilite également le chargement et le déchargement par les opérateurs.

Les fonctions des semi-remorques à ridelles sont très diversifiées. En plus de leur fonction de transport de base, elles peuvent également répondre à des besoins de transport spéciaux. Par exemple, de nombreuses entreprises doivent transporter des marchandises en vrac telles que du bois, de l'acier et des équipements mécaniques. Ces marchandises sont souvent volumineuses et lourdes. Les semi-remorques à ridelles, avec leur grande capacité de charge et leur intérieur spacieux, peuvent répondre à ces demandes. La conception des semi-remorques à ridelles permet d'empiler les marchandises en plusieurs couches, améliorant ainsi l'efficacité du transport.

En termes de scénarios d'application, les semi-remorques à ridelles ordinaires se retrouvent dans presque tous les secteurs. Par exemple, dans le secteur de la construction, elles sont souvent utilisées pour transporter des matériaux de construction tels que du ciment, des briques et des barres d'acier. Dans l'agriculture, elles sont utilisées pour transporter des produits agricoles tels que des céréales, des légumes et des fruits. Dans le secteur de la logistique, les semi-remorques à ridelles sont des outils de transport indispensables, offrant une garantie pour la distribution rapide et efficace des marchandises. Grâce à leur flexibilité, ces semi-remorques peuvent circuler sur différentes conditions routières, aussi bien en milieu urbain que rural, démontrant une adaptabilité extrêmement forte.

L'importance des semi-remorques à ridelles dans l'industrie du transport ne peut être sous-estimée. Avec le développement de l'économie, la demande de transport de marchandises augmente jour après jour, et l'amélioration de l'efficacité du transport est particulièrement cruciale. Les semi-remorques à ridelles, avec leurs capacités de chargement et de déchargement efficaces et leurs méthodes de transport flexibles, ont grandement amélioré l'efficacité opérationnelle de la logistique. En particulier dans le contexte du transport multimodal, les semi-remorques à ridelles peuvent être combinées avec d'autres modes de transport tels que le ferroviaire et le maritime pour former une chaîne logistique complète, améliorant ainsi l'efficacité globale du transport.

Les semi-remorques à ridelles ordinaires jouent également un rôle positif dans la protection de l'environnement. L'industrie moderne du transport met de plus en plus l'accent sur le développement durable. La conception et l'utilisation des semi-remorques à ridelles peuvent efficacement réduire les émissions de carbone pendant le processus de transport. De nombreuses entreprises prennent en compte l'impact sur l'environnement lorsqu'elles choisissent leurs moyens de transport. La conception légère des semi-remorques à ridelles réduit la consommation de carburant, minimisant ainsi la pollution environnementale et répondant aux exigences de la société moderne en matière de transport vert.

Cependant, il y a également quelques points à noter lors de l'utilisation des semi-remorques à ridelles. Pendant le transport, les conducteurs doivent strictement respecter les règles de circulation pour assurer la sécurité routière. En raison de la grande longueur et hauteur des semi-remorques à ridelles, les conducteurs doivent être particulièrement prudents lors des virages ou des changements de voie pour éviter les accidents de la route. Lors du chargement des marchandises, il est nécessaire de veiller à une répartition uniforme pour éviter des risques tels que le renversement dû à un centre de gravité instable. Lorsque les entreprises utilisent des semi-remorques à ridelles, elles doivent également effectuer un entretien et des inspections régulières des véhicules pour s'assurer qu'ils sont en bon état et prolonger leur durée de vie.

La semi-remorque à ridelles est un outil de transport flexible et efficace et joue un rôle important dans la logistique moderne. Elle répond non seulement aux besoins de transport de marchandises dans divers secteurs, mais se distingue également par son amélioration de l'efficacité du transport et la réduction de l'impact environnemental. Avec le développement de la technologie et les progrès continus de l'industrie logistique, les perspectives d'application des semi-remorques à ridelles seront encore plus vastes. À l'avenir, avec les changements dans la demande du marché et les avancées technologiques, les semi-remorques à ridelles continueront également à saisir de nouvelles opportunités de développement, contribuant à la croissance économique et au progrès social.

M. Owen Zhang
owen@vehiclemaster.com
+86 15269108961

Obtenez des devis en temps réel
Intéressé(e) ? Laissez-nous vos coordonnées.